Bâtiment Industriel / Entrepôt / Dépôt - 872 m² - Pineuilh - N°47
Commune :
PINEUILH
Zone d'activité :
L'Arbalestrier
Vocation du local :
Bâtiment Industriel / Entrepôt / Dépôt
Conditions générales
Surface totale :
872 m²
Loyer annuel :
24 000 € an
/ HT
/ HC
Prestations
Parking 20 places
Bâtiment à louer sur la Zone Artisanale de l'Arbalestrier à Pineuilh 33220 en Gironde, à proximité de Bergerac sur la RD 936 entre Libourne et Bergerac, accessible depuis la rocade.
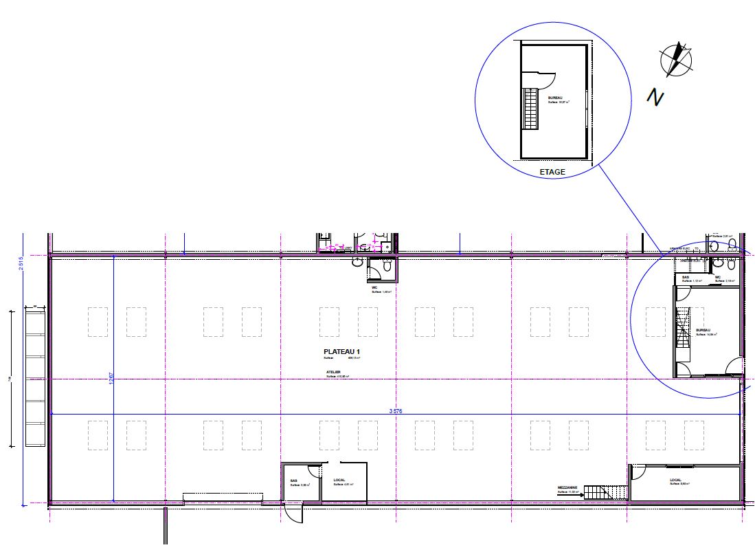
La surface à louer comprend un plateau de 456 m2 au sol (+ un espace bureau à l'étage de 16m2) + un espace parking clos en extérieur d'environ 400m2 / le local est non isolé thermiquement.
Présence compteur eau, compteur électricité, télécommunication et réseau égoût.
Libre sous 2 à 3 semaines après validation d'un bail.
